Objektart
Adresse
Objektdaten
Informationen
Ausstattung
Details
Die charmante Doppelhaushälfte in ruhiger Wohnlage von Wermsdorf präsentiert sich mit einem gepflegten Erscheinungsbild und klassischer Fassadengestaltung. Auf einem 340 m² großen Grundstück bietet das Objekt eine einladende Hofeinfahrt, eine solide Garage sowie einen nutzbaren Gartenbereich hinter dem Haus. Der Außenbereich umfasst zudem weitere Nebengebäude bzw. Unterstellmöglichkeiten, die sich ideal als Werkstatt, Lager oder Hobbyfläche eignen. Die Immobilie wirkt bereits von außen durchdacht strukturiert und vermittelt ein angenehmes, wohnliches Ambiente. Perfekt für Käufer, die Wert auf Ruhe und eine solide Wohnsubstanz legen.
Die Heizung aus dem Jahr 2005 erfolgt über Elektroheizungen, sogenannte Nachtspeicheröfen, die mit einem existierenden Stromvertrag über einen gesonderten Tarif für wohlige wärme Sorgen, ohne dabei kostenintensiv zu sein. Die Abrechnungen der letzten Jahre liegen lückenlos vor und können eingesehen werden.
Das Glasfaserkabel liegt bereits an, die Innendose wird Anfang 2026 gesetzt.
Die Detailbeschreibung der Innenräume und die Raumaufteilung der Geschosse finden Sie in der Beschreibung der Ausstattung.
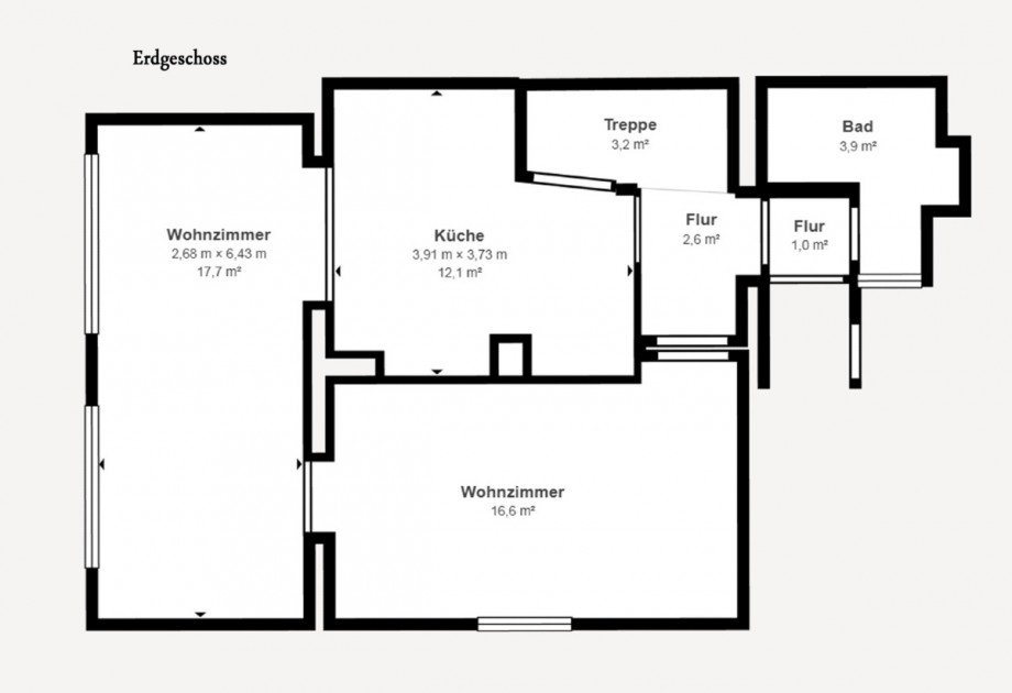
ERDGESCHOSS:
Der Eingangsbereich der Doppelhaushälfte empfängt Sie mit einem gemütlichen, traditionellen Charakter. Die Kombination aus hellen Wandfliesen und warmen Holzverkleidungen verleiht dem Raum eine einladende, rustikale Atmosphäre. Vom kleinen, funktional geschnittenen Flur aus erreichen Sie direkt das Bad sowie die weiteren Räume des Erdgeschosses. Die Türen in Holzdesign fügen sich harmonisch in das Gesamtbild ein und sorgen für einen stimmigen, wohnlichen Übergang in die angrenzenden Bereiche.
Die Küche befindet sich zwischen Eingangsbereich und Wohnzimmer. Sie bietet ausreichend Platz für eine vollwertige Einbauküche sowie für einen kleineren Essplatz. Klassische Bodenbeläge und robuste Wandflächen lassen Raum für moderne Gestaltung. Die gute Anordnung der Anschlüsse erleichtert eine Neuplanung, egal ob traditionell oder offen gestaltet.
Das Wohnzimmer bildet das Herzstück des Erdgeschosses. Großzügig geschnitten und durch die große Fensterfront angenehm belichtet, entsteht eine warme Wohnatmosphäre. Die Raumproportionen bieten vielfältige Möglichkeiten für eine komfortable Sitzlandschaft, einen Essbereich oder zusätzliche Wohnideen. Durch seine zentrale Lage im Haus eignet sich der Raum hervorragend als kommunikatives Zentrum für Familie und Gäste.
Direkt angrenzend befindet sich das Schlafzimmer, das einen ruhigen Rückzugsort bietet und durch seine Nähe zum Wohnraum eine komfortable Wohnsituation schafft. Die Lage dieser beiden Räume nebeneinander ermöglicht kurze Wege und macht das Erdgeschoss zu einem nahezu ebenerdigen Wohnbereich.
Das Tageslichtbad befindet sich ebenfalls im Erdgeschoss und ist zweckmäßig ausgestattet. Mit seinen hellen Fliesen, einem Waschbecken sowie einer Badewanne bietet es eine solide Basis, die sich mit überschaubarem Aufwand zeitgemäß modernisieren lässt.
OBERGESCHOSS:
Das Obergeschoss des Hauses präsentiert sich gepflegt und funktional gestaltet. Ein zentraler Flur verbindet die einzelnen Räume und führt über eine Holztreppe hinunter ins Erdgeschoss. Die warmen Wandfarben und die sichtbaren Holzelemente verleihen dieser Etage eine gemütliche, wohnliche Atmosphäre.
Das großzügig geschnittene Schlafzimmer bietet ausreichend Platz für ein Doppelbett sowie weitere Möblierung. Durch das Fenster fällt viel Tageslicht in den Raum, wodurch eine freundliche und ruhige Rückzugszone entsteht.
Ein weiteres Zimmer auf dieser Etage eignet sich ideal als Kinderzimmer, Gästezimmer oder auch als kleines Homeoffice. Es bietet genügend Stellfläche für Schreibtisch, Schrank und Bett. Von hier aus erfolgt der Zugang zum Dachgeschoss über eine Treppe.
DACHGESCHOSS:
Das Dachgeschoss präsentiert sich als gemütlicher, komplett holzverkleideter Wohnraum mit angenehmer Atmosphäre. Die charakteristischen Dachschrägen verleihen dem Bereich einen warmen, heimeligen Charme und machen ihn zu einem besonders behaglichen Rückzugsort. Der Raum eignet sich ideal als zusätzliches Kinderzimmer, Spiel- oder Kreativbereich. Auch als ruhige Lese- oder Entspannungsecke lässt sich dieser Bereich hervorragend nutzen.
KELLER:
Das Gebäude ist teilunterkellert. Der Keller besteht aus einem trockenen, einzelnen Raum.
Diese attraktive Doppelhaushälfte befindet sich in ruhiger und zugleich gut angebundener Lage der Gemeinde Wermsdorf im Landkreis Nordsachsen. Die Umgebung besticht durch ihre naturnahe Atmosphäre, gepflegte Wohnstraßen und eine familienfreundliche Nachbarschaft.
Wermsdorf ist bekannt für seine wunderschöne Landschaft mit dem Wermsdorfer Forst und zahlreichen Teichen und Seen, die zu Spaziergängen, Radtouren und Freizeitaktivitäten im Grünen einladen. Besonders beliebt sind das historische Schloss Hubertusburg sowie der nahe gelegene Horstsee, die beide in wenigen Minuten erreichbar sind.
Das Ortszentrum bietet eine gute Infrastruktur mit Einkaufsmöglichkeiten, Ärzten, Schule, Kindergarten, Gastronomie und öffentlichen Einrichtungen. Durch die verkehrsgünstige Lage mit Anschluss an die B6 und die Autobahn A14 sind die Städte Leipzig, Dresden, Grimma und Oschatz bequem erreichbar ? ideal für Berufspendler, die ländliche Ruhe und Stadtnähe kombinieren möchten.
Die Lage dieser Immobilie verbindet somit hohen Wohnkomfort in naturnaher Umgebung mit einer guten Erreichbarkeit der regionalen Zentren ? ein perfekter Ort für Familien oder Paare, die Wert auf Lebensqualität und Entspannung im Grünen legen.
Sämtliche Angaben in den Exposés sind nach bestem Wissen und Gewissen durch die Firma Busch Immobilien GmbH erstellt worden und beruhen auf Angaben des Verkäufers oder Vermieters. Bei den geschätzten Größen handelt es sich um ca. Angaben, eine Haftung durch die Firma Busch Immobilien GmbH ist grundsätzlich ausgeschlossen. Irrtum, Zwischenverkauf und die Zwischenvermietung bleiben vorbehalten.
Ansprechpartner
Mobil: +49176-34692838
info@busch-immobilien-leipzig.de
Downloads
Energieausweis (Verbrauchsausweis)
85 kWh / (m²*a) Energieverbrauchskennwert
85 kWh / (m²*a) Energieverbrauchskennwert
85 kWh / (m²*a) Energieverbrauchskennwert
85 kWh / (m²*a) Energieverbrauchskennwert
85 kWh / (m²*a) Energieverbrauchskennwert Weitere Informationen
| Wesentlicher Energieträger | Elektro |
| Energieausweis Ausstelldatum | 2025-11-09 |
| Energieausweis gültig bis | 09.11.2035 |
| Energieverbrauch für Warmwasser | enthalten |
| Energieausweis Werteklasse | C |
| Energieausweis Baujahr | 1930 |
| Energieausweis Gebäudeart | Wohngebäude |
| Heizung | Zentralheizung |
| Befeuerung | Elektro |
Ich bin damit einverstanden, dass mir Karten von Google angezeigt werden. Es gelten die Datenschutzbedingungen von Google (https://policies.google.com/privacy).
Ich bin einverstanden