herrliche Dachgeschosswohnung mit Maisonette in Altenburg zu verkaufen.
Objektart
Adresse
Objektdaten
Informationen
Ausstattung
Details
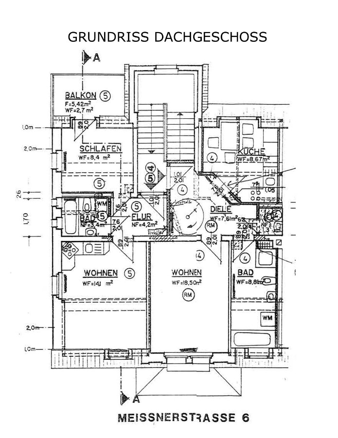
Dieses sehr gepflegte Mehrfamilienhaus bietet eine großzügige Wohnung im Dachgeschoss. Angekommen im 4.Obergeschoss erwartet Sie eine helle und freundliche Familienwohnung. Hier erwarten Sie zwei Bäder, eine Küche, ein Wohnzimmer, drei weitere Zimmer sowie einen Balkon. Die Maisonette-Etage bietet zusätzlich zwei weitere Zimmer und eine charmante Wohndiele, die alle einen herrlichen Blick über die Stadt Altenburg bieten. Die Räume sind gut geschnitten und ermöglich trotz Dachgeschoss das stellen von herkömmlichen Möbeln.
Die Wohnung war in den letzten 20 Jahren an fürsorgliche Mieter vermietet und wird ab dem 31.01.2026 für Selbstnutzer verfügbar sein. Die Räumlichkeiten befinden sich in einem sehr gepflegten Zustand. Das gesamte Anwesen ist pflegeleicht und wirtschaftlich angelegt und lädt zum Wohlfühlen ein.
Zur Wohnung gehören vier Carports, von denen sind derzeit drei vermietet (je 40 EURO). Auf den Carports wurden vor wenigen Wochen die Dächer neu belegt, so das hier die nächsten Jahre nicht instand zu setzen ist.
Die Immobilie befindet sich in einer attraktiven Lage in Altenburg, einer charmanten Stadt in Thüringen, die für ihre reiche Geschichte und kulturelle Vielfalt bekannt ist. Die Umgebung bietet eine harmonische Mischung aus städtischem Leben und ländlicher Ruhe, was sie zu einem idealen Wohnort für Familien, Paare und Berufstätige macht.
In unmittelbarer Nähe finden Sie zahlreiche Einkaufsmöglichkeiten, darunter Supermärkte, Boutiquen und Fachgeschäfte, die den täglichen Bedarf bequem abdecken. Für kulinarische Genüsse sorgen diverse Restaurants und Cafés, die sowohl lokale als auch internationale Küche anbieten.
Die Anbindung an den öffentlichen Nahverkehr ist hervorragend, mit Bushaltestellen und dem Bahnhof Altenburg in kurzer Entfernung, was eine unkomplizierte Verbindung zu den umliegenden Städten und Gemeinden ermöglicht. Auch die Autobahnen A4 und A72 sind gut erreichbar, was Pendlern zugutekommt.
Für Familien mit Kindern stehen verschiedene Bildungseinrichtungen zur Verfügung, darunter Kindergärten, Grundschulen und weiterführende Schulen. Zudem bietet Altenburg ein breites Spektrum an Freizeitmöglichkeiten, darunter Parks, Sportvereine und kulturelle Einrichtungen wie das renommierte Theater Altenburg-Gera.
Die Nähe zu Grünflächen und Erholungsgebieten lädt zu Spaziergängen und Outdoor-Aktivitäten ein, während historische Sehenswürdigkeiten wie das Schloss Altenburg und der Schlosspark einen Einblick in die reiche Vergangenheit der Region bieten.
Insgesamt bietet die Lage eine perfekte Balance zwischen urbanem Komfort und naturnaher Erholung, was sie zu einem begehrten Wohnort in der Region macht.
Sämtliche Angaben in den Exposés sind nach bestem Wissen und Gewissen durch die Firma Busch Immobilien GmbH erstellt worden und beruhen auf Angaben des Verkäufers oder Vermieters. Bei den geschätzten Größen handelt es sich um ca. Angaben, eine Haftung durch die Firma Busch Immobilien GmbH ist grundsätzlich ausgeschlossen. Irrtum und Zwischenverkauf bleiben vorbehalten.
Ansprechpartner
Mobil: +491783127714
info@busch-immobilien-leipzig.de
Downloads
Links
Ich bin damit einverstanden, dass mir Karten von Google angezeigt werden. Es gelten die Datenschutzbedingungen von Google (https://policies.google.com/privacy).
Ich bin einverstanden