Objektart
Adresse
Objektdaten
Informationen
Ausstattung
Details
ENERGIEAUSWEIS
- Energieeffizienzklasse: F
- erstellt am: 12.11.2024
- gültig bis: 12.11.2034
- Art des Energieausweises: nach Verbrauch
- Verbrauchskennwert insgesamt: ca. 183,6 kWh/(m²a)
- Verbrauchskennwert für Strom: ca. 20,2 kWh/(m²a)
- Verbrauchskennwert für Heizung: ca. 163,4 kWh/(m²a)
- Verbrauch inkl. Warmwasser: ja
- Heizungsart: Zentralheizung
- Befeuerung: Gas
- Baujahr: 1970
---------------
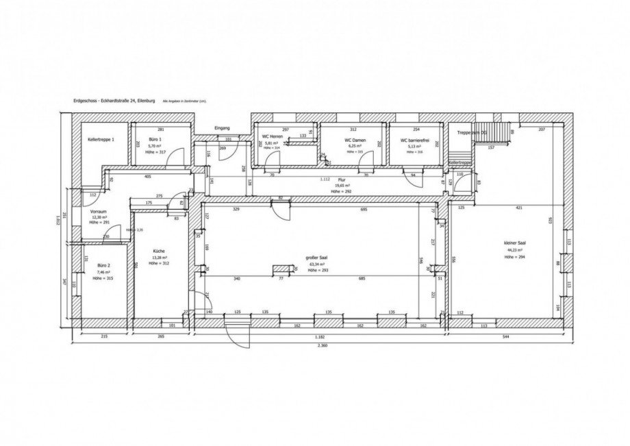
Verkauft wird eine ehemalige Begegnungsstätte eines Sozialverbandes in einem weiträumigen Innenhof einer Wohnanlage mitten in Eilenburg. Das Gebäude wurde ab 2002 bis vor ca.10 Jahren umfassend saniert und behindertengerecht umgebaut und ist somit barrierefrei. Saniert wurde das Dach inklusive Entwässerung und Schornstein, die Heizung und Sanitäranlagen und die Elektroanlage. Die Wände, Böden und Decken wurden ebenfalls saniert. Das Gebäude ist jeweils an seinen Enden teilunterkellert.
Im Gebäude selbst befinden sich zwei große Veranstaltungsräume mit anliegender Küche, zwei Toiletten, 2 Büros, Flur und eine Treppe ins Dachgeschoss. Das Dachgeschoss ist ausbaufähig.
Für den Umbau zu Wohnungen würde es einer Umnutzung und somit einem Bauantrag bedürfen. Das Gebäude eignet sich hervorragend als Office-Standort, Behindertenwohnen, Praxisgebäude, Pflegedienstzentrum, Therapiezentrum, Versammlungs-und Schulungszentrum. Es kann aber auch als Doppelhaus für zwei Familien mit Wohnen im Keller- Erd- und Dachgeschoss auf insgesamt ca.409 m² Wohn/Nutzfläche.
Die Große Kreisstadt Eilenburg befindet sich im Nordwesten Sachsens am Rand der Dübener Heide und nur ca. 20 Kilometer nordöstlich der Industrie- und Messestadt Leipzig entfernt. Bis nach Wurzen sind es ca. 16 Kilometer, nach Delitzsch ca. 23 Kilometer und nach Bad Düben ca. 19 Kilometer. Die Stadt Eilenburg gehört zum Landkreis Nordsachsen und hat knapp 16.000 Einwohner. Damit zählt sie zur viertgrößten Stadt im Kreis. Als Bestandteil des Ballungsraum Leipzig-Halle verfügt Eilenburg mit zwei Bundesstraßen und einigen Bahnstrecken über ein hervorragendes Straßen- und Schienennetz in Sachsen, welches dadurch gut in Mitteldeutschland integriert ist. Zur Stadt Eilenburg gehören die Ortsteile Hainichen, Wedelwitz, Behlitz, Kospa, Pressen und Zschettgau.
Sämtliche Angaben in den Exposés sind nach bestem Wissen und Gewissen durch die Firma Busch Immobilien GmbH erstellt worden und beruhen auf Angaben des Verkäufers oder Vermieters. Bei den geschätzten Größen handelt es sich um ca. Angaben, eine Haftung durch die Firma Busch Immobilien GmbH ist grundsätzlich ausgeschlossen. Irrtum, Zwischenverkauf und die Zwischenvermietung bleiben vorbehalten.
Ansprechpartner
Mobil: +491783127714
info@busch-immobilien-leipzig.de
Links
Ich bin damit einverstanden, dass mir Karten von Google angezeigt werden. Es gelten die Datenschutzbedingungen von Google (https://policies.google.com/privacy).
Ich bin einverstanden